检测人员合格证查询
证书号:
  实验室布局设计

实验室计量认证和资质认证过程中,硬件审查的很多问题并不是出现在仪器设备达不到要求,而是因为摆放不合理造成相互干扰,空间或温湿度无法达到仪器使用要求而出现问题,这些本来就是可以避免的。投资几十万元兴建的实验室,不应该因为一点点本可以避免的问题而延误工作。

国家建筑工程室内环境检测中心的一个很重要的任务就是推动各地各级室内环境检测实验室的建立。我们的顾问不但是实验室建设的专家,而且还是实验室认可的评审员,从他们的专业角度进行试验室布局设计,可以使您避免很多不应该出现的问题。

  • 电 话:021-58314843 58317414
  • 传 真:021-58206763
  • 联系人:李云龙
  • 地 址:上海市浦东新区浦电路489号8层
  • 邮 编:200122
  应用范例

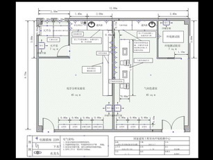
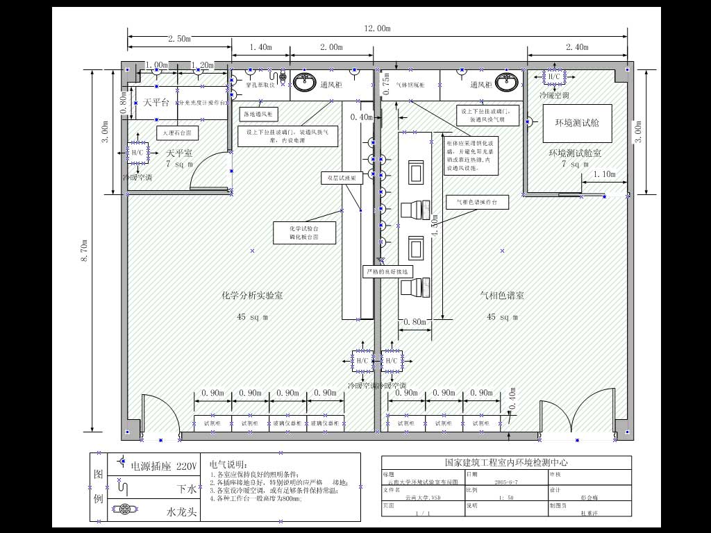
云南大学城建学院室内环境实验室布局

云南大学城建学院的实验室面积大约105平方米左右,房间正中建内墙隔断成两个独立的房间。一间为化学分析室,一间为气相色谱室。化学分析室内用钢化玻璃隔出7平方米的小房间作为天平室和分光光度计室,因为天平必须在单独的小空间内使用。气相色谱室内隔出7平方米的小房间作为环境测试舱室。(点击浏览详细图纸

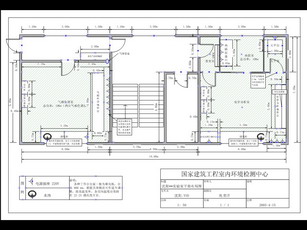
沈阳市某建筑工程室内环境实验室布局

实验室面积大约82平方米左右,两个独立的房间分别位于楼梯间的两边。一间为化学分析室,一间为气相色谱室。化学分析室面积较大内用钢化玻璃分别隔出更衣室、高温室和天平室。气相色谱室外走廊建钢质有锁气体钢瓶柜。(点击浏览详细图纸
© National Indoor Environment Testing Center,2005.All rights reserved.
©国家建筑工程室内环境检测中心,2005,版权所有。